1101_ハンドリフト用架台

1101_ハンドリフト用架台

ハンドリフトでデバン作業する場合使用致します。

1101_ハンドリフト用架台

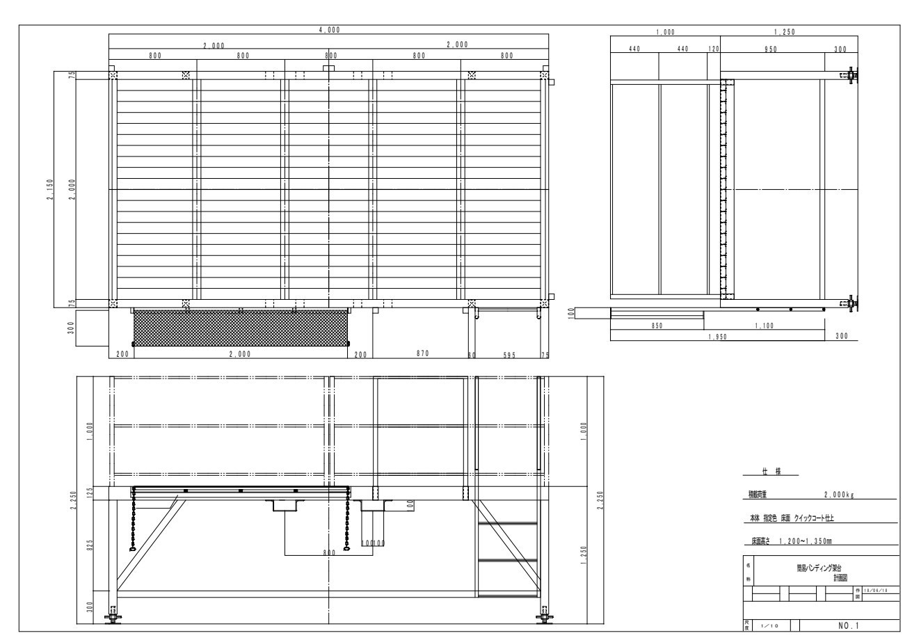
1101_ハンドリフトステージ

高さ調整±50mm

トラックとの段差解消して、ハンドリフトで貨物を海上コンテナから降ろす商品となります。

主要諸元

型式    

走行荷重 2000kg 

寸法 2120W×4000L×1250~1350mmH

架台部 簡易滑り止め塗料

登坂部 無し

フォークガイド無し

ジャッキ4個付き

サイドガード 安全柵 1000H

色 さび止め+青色自然乾燥塗装

荷下ろし設置には2.5t以上のカウンターフォークリフト及び

フォーク1800L以上必要となります。

設置ににサイドシフト車推奨となります。